Med et bruksareal på 205 kvadratmeter, inkludert carport og sportsbod, tilbyr boligen alt du trenger for å leve komfortabelt. Fire soverom, eget walk-in-closet, to bad, vaskerom, stor loftstue og en flott uteterrasse over carporten gir deg plass til å leve drømmelivet. Den praktiske plasseringen av alle hovedfunksjonene på ett plan gjør dette huset også attraktivt for alle livsfaser.
Integrert carport og smart oppbevaring
Huset har en integrert carport på den ene siden, som er kombinert med en stor, deilig terrasse. En trapp gir enkel adkomst til terrassen. I tilknytning til carporten finner du også en sportsbod som gir deg god lagringsplass for bildekk, ski, sykler og annet utstyr.
Fantastisk takhøyde og alt på ett plan
Hovedinngangen er på grunnplanet og er overbygd for ekstra komfort. Takhøyden på hele 2,7 meter i inngangsparti og stue skaper en fantastisk romfølelse når du kommer inn. En romslig hall ønsker deg velkommen og gir tilgang til praktisk gjestetoalett og en teknisk bod. Herfra kan du bevege deg til avslapningssonen med hovedsoverommet, som har eget walk-in-closet og en egen luksuriøs baderomsløsning. Du kan også gå rett inn i den romslige stuen med åpen løsning mot kjøkkensonen. De store vindusflatene gir deg rikelig med naturlig lys og en lys og luftig atmosfære. I tilknytning til kjøkkenet finner du vaskerommet med egen utgang til hagen. Kjøkken- og soveromsavdelingen, samt vaskerommet, har en takhøyde på 2,5 meter.
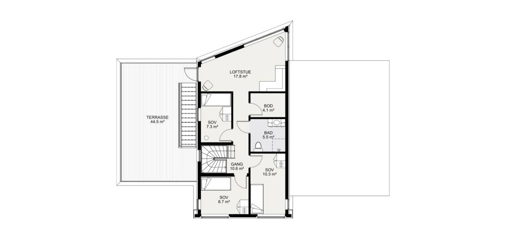
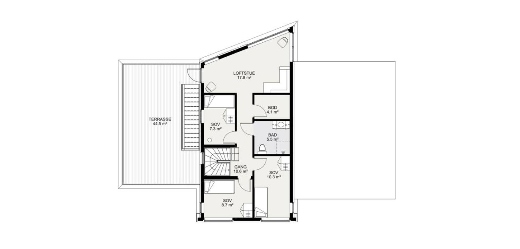
Loftsetasje med tre soverom, bad og spennende loftstue
En trapp fra hallen fører deg til husets loftsetasje, hvor du finner tre ekstra soverom, et bad, en praktisk bod og en spennende loftstue. Denne har en unik skråvegg som skaper et karakteristisk overheng over uteplassen på grunnplanet. Store panoramavinduer, som går fra gulv til tak, gir deg en imponerende utsikt og gjør loftstuen til et unikt samlingssted. Signatur 307 er det ideelle huset for deg som ønsker noe litt annerledes og moderne.
Velkommen til Signatur 307 - en bolig som virkelig skiller seg ut!